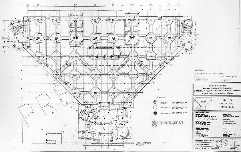
[COM] pianta dei pali di fondazione
CENTRO ONCOLOGICO MODENESE