 |
- - Planimetria generale del Policlinico di Modena.
(Il progetto del Centro Oncologico Modenese è evidenziato in nero).
disegno originale
800
- - Planimetria generale del Centro Oncologico Modenese e dellarea immediatamente circostante.
Si nota la zona alberata davanti al fronte nord-ovest delledificio.
A sud-ovest gli edifici del nucleo principale del Policlinico.
legenda planimetria
disegno originale
800
- - Pianta del piano terreno destinato a atrio, spogliatoi, magazzini e sottocentrali tecnologiche.
disegno originale
800
- - Pianta del piano primo destinato a day-hospital e ambulatori di oncologia, medicina ad indirizzo oncologico ed ematologia.
disegno originale
800
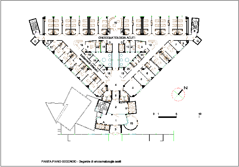
- - Pianta del piano secondo destinato a degenze oncoematologia acuti.
disegno originale
800
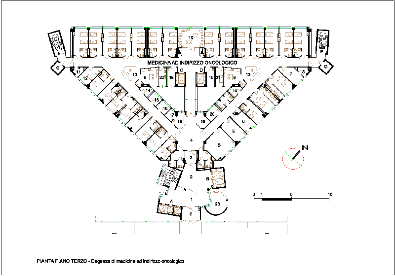
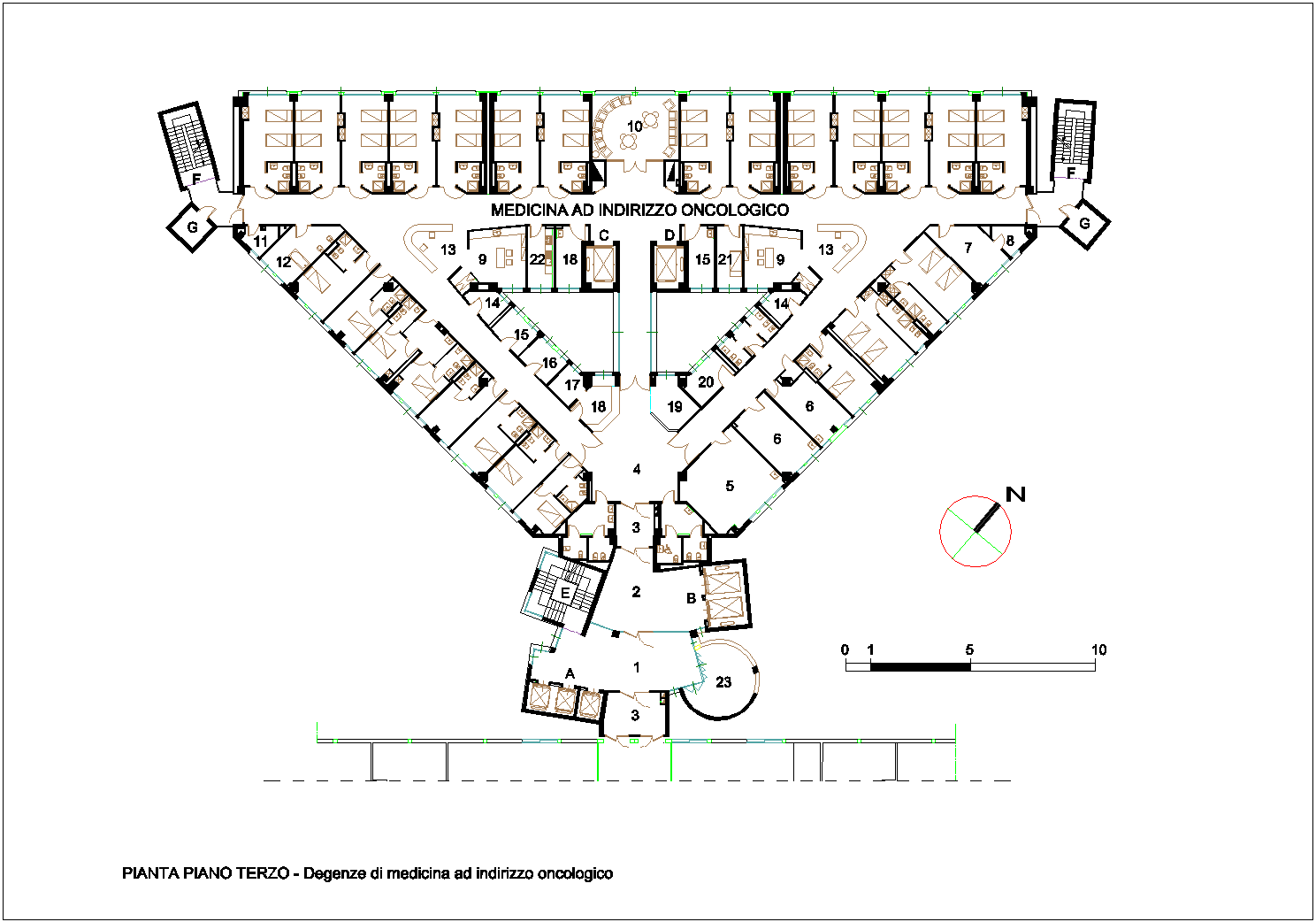
- - Pianta del piano terzo destinato a degenze di medicina ad indirizzo oncologico.
disegno originale
800
- - Pianta del piano quarto destinato a laboratori e aule didattiche.
disegno originale
800
- - Rendering a computer. Vista dallalto da nord del nuovo edificio inserito nel contesto degli edifici esistenti del Policlinico.
disegno originale
800
- - Rendering a computer. Vista del nuovo edificio dal percorso pedonale di accesso.
disegno originale
800
- - Rendering a computer. Vista interna dellatrio di ingresso.
disegno originale
800
- - Rendering a computer. Vista della postazione di controllo angolare dei piani di degenza.
disegno originale
800
- - Schema assonometrico con la distribuzione delle funzioni ai piani
disegno originale
800
|